estudio LOG
LOGO
     
Espacio web creado y gestionado por: estudio LOG © 2016
proyectos de investigación

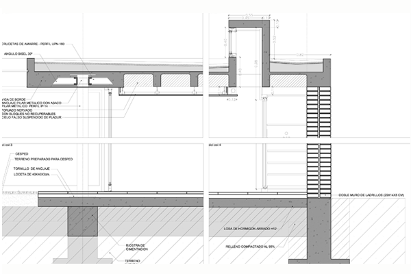
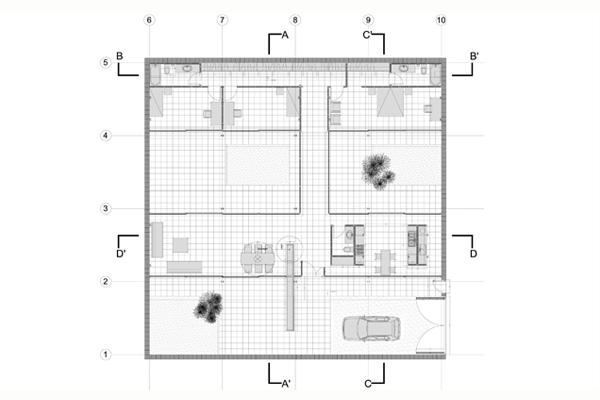
Estudio Casa Patio 1
Juan Pablo Ortiz Valoy, Joaquín Velasco y Juan Carlos Aranibar.