estudio LOG
LOGO
     
Espacio web creado y gestionado por: estudio LOG © 2016
arquitectura

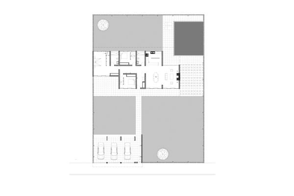
Estudio Casa Patio 30 x 40m
estudio LOG