estudio LOG
LOGO
     
Espacio web creado y gestionado por: estudio LOG © 2016
proyectos de investigación

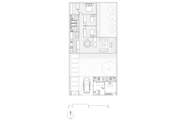
Estudio vivienda 12 x 24 m
Eunice García García, Gleen Deloufeu, José Manuel Erazo